| Telefons: | |
|---|---|
| E-pasts: | |
| www: | |
| Vieta | Siguldas novads, Krimuldas pagasts |
Pārdod dzīvokli Nākotnes iela 1
39 900.00 €
|
Adrese
Nākotnes iela 1
|
Ēkas tips
Hruščova laika projekts
|
|
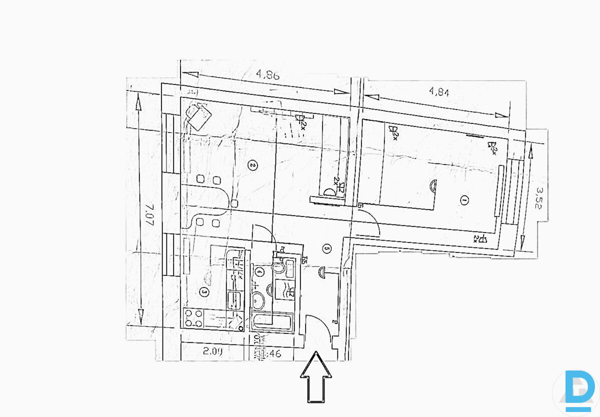
Istabas
2
|
Platība, m2
47.63
|
|
Stāvs
3 / 3
|
|
|
Mājīgs 2-istabu dzīvoklis zaļā, mierīgā lokācijā Sunīšos.
Par īpašumu : + Pirms gada dzīvoklī tika veikts kosmētiskais remonts ( mainītas grīdas; krāsotas sienas; u.c.) + Dzīvoklis tiek pārdots ar visu sadzīves tehniku un mēbelēm + Gāzes katlam regulāri katru gadu ir bijusi veikta apkope + Dzīvoklī ir veikta pārbūve, kas ir saskaņota un legalizēta + Pirms aptuveni pieciem gadiem ēkai mainīts jumts + Dzīvoklī savā laikā tika veikts kapitālais remonts + Labiekārtota, apzaļumota apkārtējā teritorija + Kāpņutelpa renovēta pirms trīs gadiem + Bezmaksas autostāvvieta apkārt ēkai + Individuāli regulējama gāzes apkure + Pagrabā pieejama mantu glabātuve + Logi ar skatu uz abām ēkas pusēm + Klusi un mierpilni kaimiņi + Apsaimnieko SIA "CDzP" + Dzīvoklī mainīti stāvvadi + Sakārtota kāpņutelpa + Jauni radiatori Plānojums : + Viesistaba apvienota ar virtuvi + Apvienots sanitārais mezgls + Izolēta istaba + Gaitenis + Virtuve Dzīvoklis atrodas mierīgā Sunīšu ciemā, 15 km no Siguldas un 45 km no Rīgas, zaļā mežu un lauku vidē. Tuvumā pārtikas veikals, ēdināšana, Murjāņu sporta ģimnāzija, kā arī iedzīvotājiem pieejams publiskais skolas autobuss. Ērta piekļuve Gaujas nacionālajam parkam un dabas takām. Zvaniet vai rakstiet un noteikti varēsim vienoties par Jums ērtāko apskates laiku. Pēc vajadzības palīdzam mūsu klientiem ar izdevīgāko hipotekārā kredīta noformēšanu, kā arī piedāvājam sertificēta vērtētāja pakalpojumus. Pilns juridisks atbalsts līdz pat atslēgu nodošanai jaunajiem īpašniekiem. |
|
Sludinājuma nr.: 969254
Ievietots: 20.12.2025 / 0:03
Apmeklējumu skaits: 83 Šodien: 1Pēdējās izmaiņas: 22.12.2025 / 7:53









